BLOCK THE LANDMARK 4 - VINHOMES CENTRAL PARK (L4)
(Mở bán ngày 21/06/2015)THE LANDMARK 4
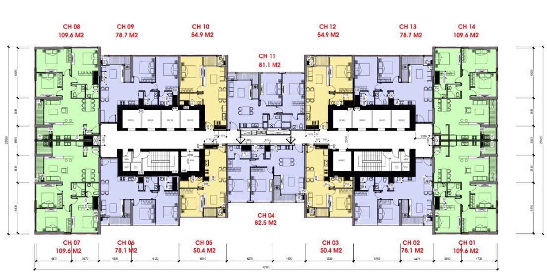
TỔNG QUAN KHU CĂN HỘ THE LANDMARK 4.
• Số căn hộ: 13 căn hộ và căn hộ thương mại Officetell trên một sàn từ 1 đến 3 phòng ngủ (chưa bao gồm penthouse)
• Số tầng: 50 tầng
• Vị trí: Nằm gần Khu Bệnh Viện Vinmec, một mặt hướng về phía thành phố Quận 1 và Quận 3, Bình Thạnh, một mặt hướng về nội khu Vinhomes Central Park. Toà landmark 81 tầng, Toà L3
• Số lượng thang: 12 thang máy và 2 thang thoát hiểm cửa chống cháy
• Số Đơn Nguyên: 01
• 3 tầng hầm để xe thông minh
• Chiều rộng hành lang sảnh thang máy: 2,7m
• Số căn hộ: 13 căn hộ và căn hộ thương mại Officetell trên một sàn từ 1 đến 3 phòng ngủ (chưa bao gồm penthouse)
• Số tầng: 50 tầng
• Vị trí: Nằm gần Khu Bệnh Viện Vinmec, một mặt hướng về phía thành phố Quận 1 và Quận 3, Bình Thạnh, một mặt hướng về nội khu Vinhomes Central Park. Toà landmark 81 tầng, Toà L3
• Số lượng thang: 12 thang máy và 2 thang thoát hiểm cửa chống cháy
• Số Đơn Nguyên: 01
• Số tầng: 50 tầng
• Vị trí: Nằm gần Khu Bệnh Viện Vinmec, một mặt hướng về phía thành phố Quận 1 và Quận 3, Bình Thạnh, một mặt hướng về nội khu Vinhomes Central Park. Toà landmark 81 tầng, Toà L3
• Số lượng thang: 12 thang máy và 2 thang thoát hiểm cửa chống cháy
• Số Đơn Nguyên: 01
• 3 tầng hầm để xe thông minh
• Chiều rộng hành lang sảnh thang máy: 2,7m
• Chiều rộng hành lang sảnh thang máy: 2,7m
TIỆN ÍCH THE LANDMARK 4
• Bệnh Viện đa khoa Vinmec.
• Hồ bơi ngoài trời.
• hầm để xe rộng rãi.
• Lounge
• Khu vực lễ tân và sảnh chờ với đội ngũ nhân viên phục vụ 24/7
• Hệ thống camera và hệ thống báo khói, báo cháy, đầu phun chữa cháy tự động tại hành lang các tầng căn hộ.
• Bệnh Viện đa khoa Vinmec.
• Hồ bơi ngoài trời.
• hầm để xe rộng rãi.
• Lounge
• Khu vực lễ tân và sảnh chờ với đội ngũ nhân viên phục vụ 24/7
• Hệ thống camera và hệ thống báo khói, báo cháy, đầu phun chữa cháy tự động tại hành lang các tầng căn hộ.
Vinhomes Central Park, cùng ba tòa căn hộ hiện đại, The Landmark hứa hẹn sẽ thiết lập một phong cách sống năng động và hết sức tiện nghi cho những chủ nhân thời thượng.Landmark 1, 2, 3 tọa lạc tại phía nam tòa tháp The Landmark 81, dọc theo trục Đông Tây của thành phố với tầm nhìn hướng ra công viên bên sông lãng mạn và quảng trường trung tâm rộng lớn, là nơi “cuộc sống New York” đón chờ bạn ngay giữa lòng Sài Gòn.
VỊ TRÍ BLOCK CĂN HỘ THE LANDMARK 4
Block Căn hộ The Landmark 4 (L4) nằm trong khuôn viên dự án Vinhomes Central Park, có các hướng View chính như sau:
- Hướng TN: Đường Nguyễn Hữu Cảnh và thành phố Quận 1, Q3.
- Hướng TB: Đường Nguyễn Hữu Cảnh, Thành phố Quận Bình Thạnh.
- Hướng ĐB: View hồ bơi, Toà nhà C6, khu tiện ích Vinhomes
- Hướng ĐN: Bệnh viện Vinmec, Khu trường học VinsChool, View sông, Toà nhà L3
- Hướng ĐN & ĐB: Bệnh viện Vinmec, Khu trường học VinsChool, View sông, Toà nhà L3, View Hồ bơi, Toà nhà C5
- Hướng TN & TB: Đường Nguyễn Hữu Cảnh và thành phố. các Quận 1, Q3, Q.Bình Thạnh.
Block Căn hộ The Landmark 4 (L4) nằm trong khuôn viên dự án Vinhomes Central Park, có các hướng View chính như sau:
- Hướng TN: Đường Nguyễn Hữu Cảnh và thành phố Quận 1, Q3.
- Hướng TB: Đường Nguyễn Hữu Cảnh, Thành phố Quận Bình Thạnh.
- Hướng ĐB: View hồ bơi, Toà nhà C6, khu tiện ích Vinhomes
- Hướng ĐN: Bệnh viện Vinmec, Khu trường học VinsChool, View sông, Toà nhà L3
- Hướng ĐN & ĐB: Bệnh viện Vinmec, Khu trường học VinsChool, View sông, Toà nhà L3, View Hồ bơi, Toà nhà C5
- Hướng TN & TB: Đường Nguyễn Hữu Cảnh và thành phố. các Quận 1, Q3, Q.Bình Thạnh.
GIÁ BÁN CĂN HỘ THE LANDMARK 4
Quý khách vui lòng liên hệ đại lý chính thức Vinhomes hoặc gọi điện trực tiếp đến Hotline 0908214450 để cập nhật chính xác về giá bán của từng căn hộ trong Block Căn hộ Vinhomes Central Park
Quý khách vui lòng liên hệ đại lý chính thức Vinhomes hoặc gọi điện trực tiếp đến Hotline 0908214450 để cập nhật chính xác về giá bán của từng căn hộ trong Block Căn hộ Vinhomes Central Park


